Villa singola in vendita

Palermo, Stradale Bellolampo - Bellolampo
€ 197.000
6 locali 6 locali
223 Mq 223 Mq
3 bagni 3 bagni

Villa singola in vendita

Palermo, Stradale Bellolampo - Bellolampo

Descrizione annuncio

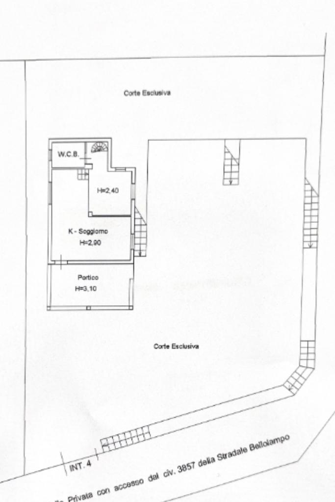
Villa Panoramica su 3 Livelli - Bellolampo (4 Minuti dal Centro)

Proponiamo in vendita un'interessante proprietà residenziale/di campagna di 223 mq totali, situata nel complesso Residence di Bellolampo. La posizione strategica permette di raggiungere il centro abitato in soli 4 minuti di auto.

L'immobile si sviluppa su tre livelli e gode di una vista panoramica eccezionale.

Dettagli e Dotazioni

La proprietà è arricchita da una serie di servizi e spazi esterni che ne ottimizzano la funzionalità e la vivibilità:

Spazi Esterni Principali: Portico, ampio terrazzo e balcone.

Terreno: Piccolo appezzamento di terreno annesso, ideale per la realizzazione di un orto o per alberi da frutto.

Annessi Funzionali: L'esterno include una legnaia, una lavanderia esterna e due ripostigli esterni separati.

Questa soluzione coniuga la tranquillità della campagna con la comodità della vicinanza ai servizi urbani.

Mostra tutto

Nelle vicinanze

Trasporto pubblico Trasporto pubblico
Piazza Amerina/San Paolo
Piazza Amerina/San Paolo
1,5 Km
Piazza Santa Cristina
Piazza Santa Cristina
2,0 Km
Augusta - Centuripe
Augusta - Centuripe
1,3 Km
Augusta - Piazza S. Paolo
Augusta - Piazza S. Paolo
1,4 Km
Ricariche auto elettriche Ricariche auto elettriche
R.Star Concessionaria | EnelX
2,8 Km
Supermercati Supermercati
Ipercoop
1,9 Km
Conad
2,6 Km
Mostra tutto

Caratteristiche

Rif.:
61151940
Piano:
3 di 3 (Piano su più livelli)
Posti auto:
3
Balconi:
1
Terrazzi:
2
Camere da letto:
2
Mostra tutto
Prezzo Prezzo
€ 197.000
Rata mutuo Rata mutuo
€ 929 / mese
Spese annue Spese annue
€ 0
Proponi il tuo prezzoProponi il tuo prezzo
Immobile valutato con T·Valuta

Classe Energetica

G
G
G
G
G
G
G
G
G
EP globale non rinnovabile:
180.00 kW h/m² anno
EP globale rinnovabile:
180.00 kW h/m² anno
EP invernale del fabbricato:
EP estiva del fabbricato:
Anno di costruzione:
1985
Riscaldamento:
Autonomo
Tipo impianto:
A stufa
Tipo alimentazione:
Altro

Ti interessa visionare l'immobile?

Fissa un appuntamento  Fissa un appuntamento

Richiedi informazioni

Clicca su Leggi per aprire l'informativa
* Questi campi sono obbligatori

Calcola il tuo mutuo

Semplice e senza impegno
Anticipo

( % )
Mutuo

( % )

pochi semplici passi

inserisci i tuoi dati
Questionario completato
Grazie per aver richiesto un appuntamento senza impegno con un nostro Consulente del Credito e Assicurativo.

Hai inserito correttamente tutti i dati necessari e a breve riceverai una e-mail con un link da convalidare per inviare i tuoi dati.
Affiliato
Immobiliare Passo Di Rigano Borgonuovo Srl
Via Roccazzo, 36/b 90135 Palermo (PA)

Il nostro staff


  • Giovanni Nuccio
    Affiliato

  • Massimo Madonia
    Collaboratore
Via Roccazzo, 36/b 90135 Palermo (PA)
Zona: Borgo Nuovo-Passo di Rigano-Baida-Perpignano Alta-Leonardo da Vinci alta
Mostra su mappa
Orari: dal lunedi al venerdi' dalle 8:45 alle 13:00 dalle 15:00 alle 19:00 sabato dalle 8:45 alle 13:00 domenica:chiusi
Affiliato
Immobiliare Passo Di Rigano Borgonuovo Srl
Via Roccazzo, 36/b 90135 Palermo (PA)

2026 Tecnocasa Franchising S.p.A. - P. IVA 08365160152 - Via Monte Bianco 60/A 20089 Rozzano (MI). Ogni agenzia ha un proprio titolare ed è autonoma. Privacy policy | Policy utilizzo | Cookie policy